
Auteur/autrice : Marie Stragier
-

Réunifier deux villes – Urbanisme
Projet Urbain – S6- Mathieu Ho Simon Polli & Phillipe Simon

Trois objectifs



proposition de l’aménagement de la place 1987 



Flexibilité et polyvalence

Engagement environnemental
La Philharmonie participe à une initiative visant à établir de nouvelles normes Haute Qualité Environnementale pour les salles de concert. Le bâtiment vise une consommation énergétique inférieure à 50 kWh/m²/an et intègre des systèmes de récupération d’eau de pluie.
La Philharmonie de Paris s’est rapidement imposée comme un lieu culturel majeur, attirant plus d’un million de visiteurs par an et affichant un taux de remplissage de 95% pour ses concerts. Elle incarne ainsi la réussite d’un projet ambitieux visant à démocratiser la musique classique tout en repoussant les limites de l’architecture et de l’acoustique contemporaines.
-

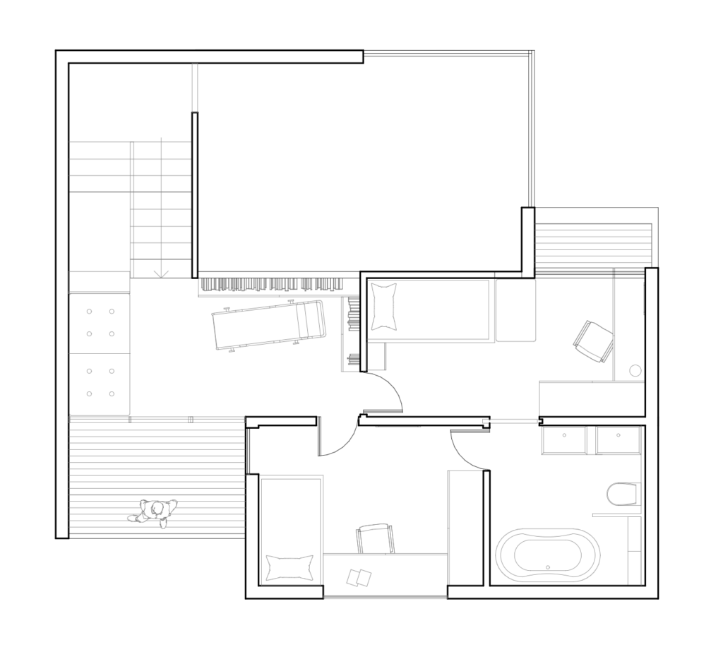
Le T4 idéal – Logement

Le but de cet exercice était de considérer tous les bienfaits de la campagne. Partant de ce constat, créer un T4 idéal qui répondrait, grâce à ses espaces extérieurs, sa luminosité, son organisation, aux attentes.
Plan RDC

Plan R+1

Coupe de l’ilot


Détail structurel de l’alcôve

Photographies de la maquette


















